FULL TIME SPACE CURRENTLY AVAILABLE
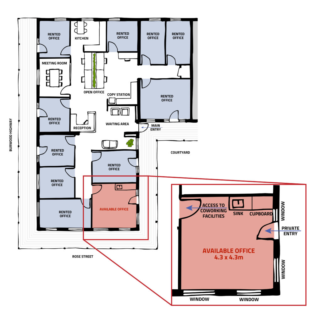
LARGE PRIVATE OFFICE / CONSULTING ROOM 8








This 18m² serviced office or consulting room offers a quiet, light-filled workspace in a prime corner location, with flexibility to be customised to suit your business needs. Ideal for small professional teams of up to 3–4 people, it suits allied health practices such as psychology, counselling or physiotherapy, as well as accountants, legal professionals, consultants, designers and other service-based businesses. A calm, professional setting that lets you still work close to home.
The spaces feature:
- Prime corner location with lots of natural light,
- Private external door making separate identity to the rest of the office possible,
- Block out and privacy blinds,
- Sink and storage cupboard,
- Ducted heating and cooling with individual temperature control,
- Dimmable lights,
- Independently lockable,
- Acoustic insulation and door seals for privacy between rooms,
The spaces share:
- Reception, kitchen, meeting room and toilets with the rest of the co-working office,
- Photocopying facilities,
- High-speed and stable internet.
$450 + GST per week – inclusive of all costs.
No lock in contract – four weeks notice only required to cancel.
Available now. Enquire to arrange an inspection.